The 9-inch Parshall Flume is a popular size in the Parshall Flume family. The flume is equally at home measuring surface waters, wastewater flows, and water rights.
Applications

The 9-inch Parshall Flume is useful in a number of applications, including:
- Dam seepage
- Industrial pretreatent monitoring
- Mine discharge
- Surface waters
- Smaller creeks and streams
- Wastewater treatment plants
- Influent
- Effluent
- Interplant flows
- Lagoons
- Water rights
Configurations
The 9-inch Parshall Flume is available in several configurations:
- Plain (where inlet / outlet transitions are by others)
- End adapters (connecting to pipes and flanges)
- Stubs and flanges up to 36-inches [91.44 cm] can be accommodated
- Metering manholes (factory integration into a fiberglass manhole structure)
- When integrating a 9-inch Parshall Flume into a metering manhole, the manhole barrel must be at least 48-inches [1.22 m] in diameter.
- Wing Walls
- Standard wing walls span channels up to 5-feet 6-inches [1.67 m] wide.
Flume Accuracy
Laboratory investigations have shown Parshall Flumes have shown to be accurate to within +/-2% under free-flow conditions.
Once approach conditions, installation, and construction tolerances are considered, it is more practical to expect free-flow accuracy to be +/-5% (ASTM D1941).
Should the flume submerge, either dedicated submerged flow or universal flow equations should be used.
The accuracy of a Parshall Flume can also be affected by the flume settling out of position. Corrections to the flow equations have been developed to account for this.
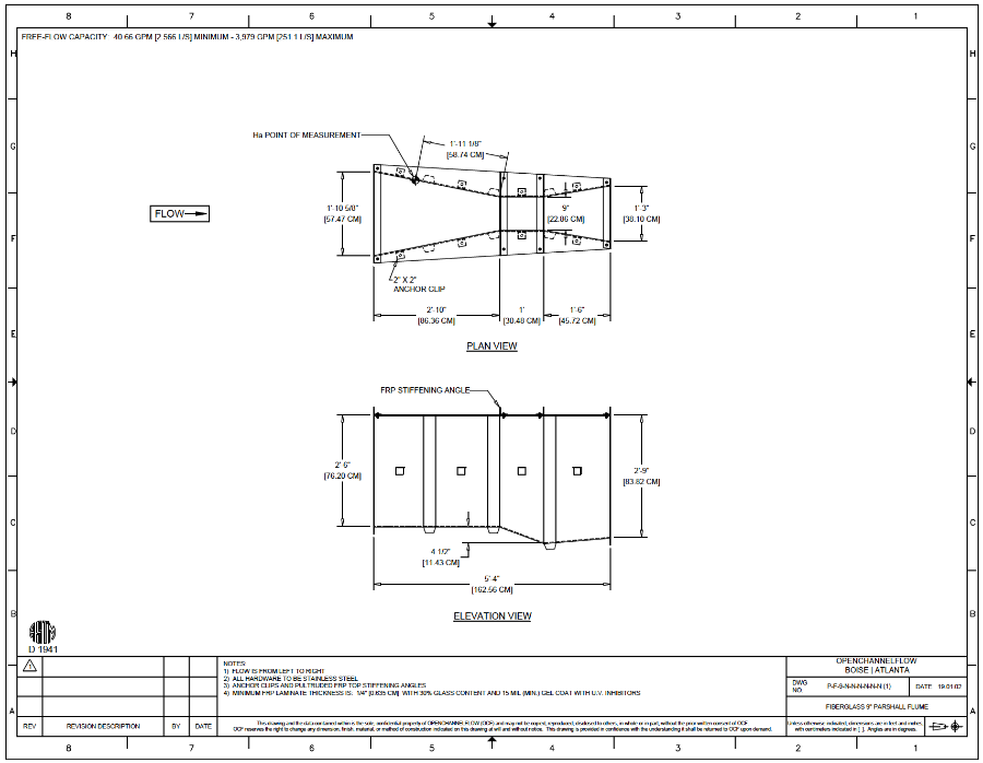
Flume Dimensions
It's important to remember that Parshall Flumes are not scale models of each other. While the flumes are similar in layout, they do differ in section lengths and convergence / divergence angles.
Free-Flow Equation
The free-flow equation for Parshall Flumes is:

For the 9-inch Parshall Flume:
| Minimum Head (ft) | 0.10 | Minimum Head (m) | 0.0305 |
| Minimum Flow Rate (cfs) | 0.0906 | Minimum Flow Rate (l/s) | 2.566 |
| Maximum Head (ft) | 2.00 | Maximum Head (m) | 0.6096 |
| Maximum Flow Rate (cfs) | 8.866 | Maximum Flow Rate (l/s) | 251.1 |
| Equation (cfs, ft) | 3.07*H1.53 | Equation (l/s, m) | 535.4*H1.53 |
Discharge Table
The flow table for the 9-inch Parshall Flume is available for download.
The table provides:
- Plan view of the flume with the primary point of measurement (Ha) shown
- Discharge equations in (3) Imperial and (2) SI units
- Flume accuracy
- Submergence transition (St)
- Source of the flow table
Materials
The 9-inch Parshall Flume is available from Openchannelflow in a range of materials, including:
Of the four materials, fiberglass provides the greatest flexibility when it comes to customization.
Submergence Transition
When downstream conditions are such that they restrict the flow out of a flume, the flume is said to be submerged. The submergence transition (St) is the point at submergence needs to be corrected for so that indicated and actual flow rates match.

For the 9-inch Parshall Flume, the submergence transition occurs at 60%. If the submergence ratio is above this, the discharge needs to be corrected.
