The 3-inch Parshall Flume is one of the last flumes developed in the Parshall series. The flume can be used equally well to measure sanitary flows as well as surface waters.
It is important to note that the 3-inch Parshall flume is the smallest Parshall Flume size that can be used on unscreened sanitary flows. The 1 and 2-inch Parshall flumes will clog on these flows.
Applications

3-inch Parshall Flumes can be found monitoring:
- Dam seeps
- Industrial pre-treatment
- Acid mine discharge
- Smaller surface waters
- Creeks
- Springs
- Packaged wastewater treatment plants
- Headworks
- Discharge
- Inter-plant flows
- Small water rights & apportionment
Configurations
The 3-inch Parshall flume is available in several configurations:
- Standard (transitions by others)
- End adapters (connecting to pipes and flanges)
- Stubs and flanges up to 16-inches [40.64 cm] can be accommodated
- Staged end adapters to fit into existing manholes
- Metering manholes (factory integration of a flume into a fiberglass manhole)
- 3-inch Parshall Flumes can be integrated into manholes 48-inch [1.22 m] and larger in diameter
- Wing Walls
- To span rectangular channels
Flume Accuracy
Under lab conditions, a Parshall Flume can be accurate to within +/-2% but practically speaking, once approach conditions, installation errors, and construction tolerances are considered, the flume's free-flow accuracy is normally closer to +/-5% (ASTM D1941).
A universal flow equation is available to correct the flow rate in a 3-inch Parshall Flume should it become submerged.
Likewise, a correction for settling has been developed.
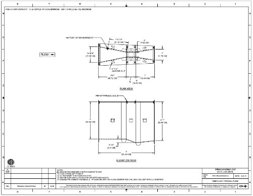
Flume Dimensions
Parshall Flumes are not scale models of each - particularly the smaller sizes. Never use intermediate or untested sizes.
Also, unlike the first (6 to 96-inches) and second (120-inches and up) series of Parshall Flumes developed, the 3-inch flume does not have defined sidewalls heights but instead is listed with a range.
Openchannelflow 3-inch Parshall Flumes are provided with 24-inch [60.96 cm] high sidewalls for maximum operating range.
Free-Flow Equation
The free-flow equation for Parshall Flumes is:

For the 3-inch Parshall Flume, the values are:
| Minimum Head (ft) | 0.10 | Minimum Head (m) | 0.0305 |
| Minimum Flow Rate (cfs) | 0.0280 | Minimum Flow Rate (l/s) | 0.7918 |
| Maximum Head (ft) | 1.50 | Maximum Head (m) | 0.4572 |
| Maximum Flow Rate (cfs) | 1.860 | Maximum Flow Rate (l/s) | 52.67 |
| Equation (cfs, ft) | 0.992*H1.55 | Equation (l/s, m) | 176.5*H1.55 |
Discharge Table
Openchannelflow's free-flow discharge table for the 3-inch Parshall is available for download.
The table provides:
- A plan view showing the primary point of measurement (Ha)
- Discharge equations in a variety of Imperial and SI units
- Flume accuracy
- Submergence Transition (St)
- Table source
Materials
The 3-inch Parshall Flume from Openchannelflow is available in several different materials:
Of these materials, fiberglass is the most easily customized.
Submergence Transition
The Submergence Transition (St) of a flume is that point at which the downstream conditions sufficiently reducer the discharge out of the flume that the indicated flow rate needs to be corrected.

The Submergence Transition for the smaller Parshall Flumes (1, 2, 3-inch) is 50%. At this point and the discharge needs to be adjusted to reflect the actual flow rate.
