The 4-inch Palmer Bowlus Flume is the smallest of the Palmer Bowlus family of flumes. The flume can pass sanitary solids without clogging.
Applications

The 4-inch Palmer Bowlus Flume is used to measure:
- Dam seepage
- Industrial pretreatment monitoring
- Mine discharge
- Wastewater treatment plants
- Waste / interplant flows
- Lagoons
Palmer Bowlus Flumes are not usually used to measure surface waters.
Styles & Configurations
Palmer-Bowlus Flumes have more flexibility in their layout than other flume types. They have both a style (physical layout) and a configuration (how they can be adapted to flow streams).
The 4-inch Palmer Bowlus Flume is available in four different styles:
- Permanent style with approach
- Permanent style without approach
- Insert style
- Cutback style
The flume is also available in four different configurations:
- Plain
- Customer to form transitions into / out of the flume
- Bulkheads with stubs / flanges
- Stubs and flanges up to 4-inches [10.16 cm] can be accommodated
- Staged ends
- Curved inlet or outlet to mate flush against the inside of a manhole barrel
- Metering Manholes (factory integration into a fiberglass manhole structure)
Flume Accuracy
Where the head in the flume is large compared to the length of the throat, Palmer-Bowlus Flumes are accurate to within +/- 3-5%.
For lower flows where the head is low compared to the length of the throat, the accuracy decreases to +/-5-6%.
Palmer-Bowlus Flumes are best when used within a defined level range.
The recommended head should be between:
0.1D < H < 0.6D
Also, unlike the Parshall Flume, corrections for settling have not been developed for Palmer-Bowlus Flumes. It is important that the flume is installed and remains level.
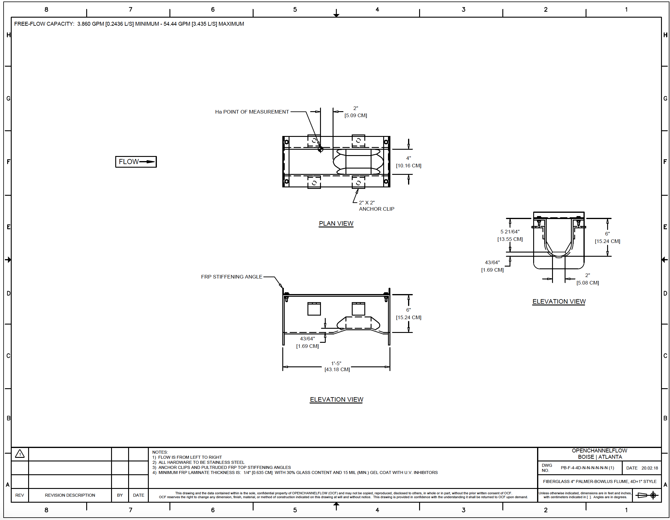
Flume Dimensions
Unlike Parshall Flumes, Palmer-Bowlus Flumes ARE scale models of each other.
A Palmer-Bowlus Flume's dimensions are solely based upon the throat width D.
Free-Flow Equation
The free-flow equation for Palmer-Bowlus Flumes is:

For the 4-inch Palmer-Bowlus:
| Minimum Head (ft) | 0.06 | Minimum Head (m) | 0.0183 |
| Minimum Flow Rate (cfs) | 0.0086 | Minimum Flow Rate (l/s) | 0.2436 |
| Maximum Head (ft) | 0.25 | Maximum Head (m) | 0.0762 |
| Maximum Flow Rate (cfs) | 0.1213 | Maximum Flow Rate (l/s) | 3.435 |
| Equation (cfs, ft) | 1.68*H1.9 | Equation (l/s, m) | 486.34*H1.9 |
Discharge Table
The flow table for the 4-inch Palmer-Bowlus Flume is available for download.
The table provides:
- Permanent style (with approach) dimensions
- Plan view of the flume with the primary point of measurement (Ha) shown
- Discharge equations in (3) Imperial and (2) SI units
- Submergence transition (St)
- Source of the flow table
Materials
The 4-inch Palmer-Bowlus Flume is available in fiberglass construction.
Submergence Transition
The high submergence transition (St) for Palmer-Bowlus Flumes - 85-90% - means that it is impractical to correct for submergence (and no corrections have been developed).

