48-inch Parshall Flumes have been used over the years to measure flow in a several different applications mine dewatering, surface waters, stream, rivers, water rights, and wastewater treatment plants.
Applications

The 48-inch Parshall Flume is useful in a number of applications:
- Mine dewatering
- Surface water
- Streams
- Rivers
- Water rights
- Canals
- Wastewater treatment plants
Configurations
The 48-inch Parshall Flume is available in two different configurations:
- Plain
- For field formed inlet / outlet transitions
- Wing Walls
- Inlet / outlet wing walls for rectangular channels
Flume Accuracy
Parshall Flume accuracy has been shown to be as good as +/-2% under controlled, laboratory conditions. Under field conditions, an accuracy of +/-5% (ASTM D1941) is more typical in a good installation.
If the flume should submerge or shift out of position, corrections for submergence and settlment have been developed.
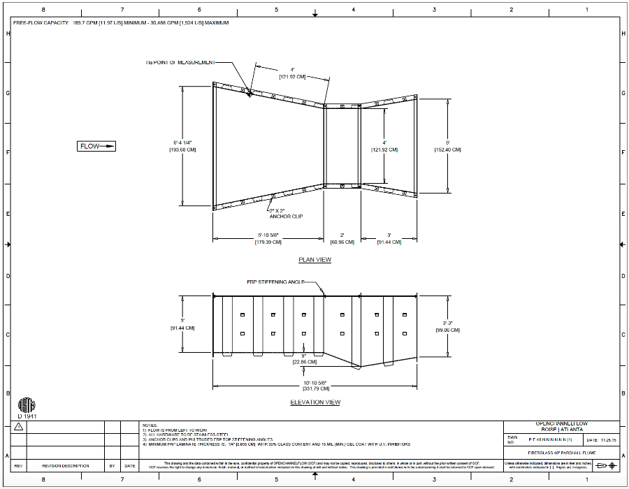
Flume Dimensions
While similar in layout, Parshall Flumes are not scale models of each other. The flumes differ in section lengths and convergence / divergence angles.
Free-Flow Equation
For a Parshall Flume the general free-flow equation is:

48-inch Parshall flume:
| Minimum Head (ft) | 0.20 | Minimum Head (m) | 0.0610 |
| Minimum Flow Rate (cfs) | 1.262 | Minimum Flow Rate (l/s) | 35.75 |
| Maximum Head (ft) | 2.50 | Maximum Head (m) | 0.7620 |
| Maximum Flow Rate (cfs) | 67.93 | Maximum Flow Rate (l/s) | 1924 |
| Equation (cfs, ft) | 16*H1.578 | Equation (l/s, m) | 2954*H1.578 |
Discharge Table
A flow-vs-head table for the 48-inch Parshall Flume is available for download.
The table provides:
- Plan view of the flume showing the point of measurement (Ha)
- Discharge equations in various units
- Free flow flume accuracy
- Submergence transition (St)
- Flow table source
Materials
Openchannelflow offers the 48-inch Parshall Flume in four different materials:
- Aluminum
- Lightweight and abrasion resistant
- Fiberglass (FRP)
- Lightweight and customizable
- Galvanized steel
- Economical
- Stainless steel
- Greatest resistance to abrasion and corrosion
Submergence Transition
Submergence in a flume occurs when the downstream conditions are such that they restrict the flow out of the flume. A point is reached, as submergence increases, where the difference between the actual and indicated flow rates is large enough that a correction has to be made. This point is termed the submergence transition (St).

The submergence transition (St) for the 48-inch Parshall Flume is 70%. At a submergence of 70% (or above) and the indicated discharge needs to be corrected to reflect the actual discharge.

