The 6-inch Parshall Flume is one of the sizes developed by Dr. Parshall during his initial studies. The flume works well in measuring water rights and can be found as smaller wastewater treatment plants.
Applications

The 6-inch Parshall Flume has been successfully used to measure flow in a number of different applications:
- Dam seepage
- Industrial pre-treatment monitoring
- Mine dewatering
- Smaller surface waters
- Creeks
- Streams
- Wastewater treatment plants
- Headworks
- Discharge
- Inter-plant flows
- Water rights & apportionment
Configurations
The 6-inch Parshall Flume is available in several configurations:
- Standard (inlet / outlet transitions by others)
- End adapters (for connecting to flanges or pipes)
- Stubs and flanges up to 21-inches [53.34 cm] can be accommodated
- Metering manholes (integrating a flume into a fiberglass manhole)
- A 48-inch [1.22 m] diameter barrel must be used when integrating a 6-inch Parshall flume into a metering manhole
- Wing Walls
- Standard wing walls span channels up to 2-feet 11 1/2-inches [0.92 m] wide
Flume Accuracy
Laboratory research has shown Parshall Flumes accurate to within +/-2%.
It is more practical to expect the flume's free-flow accuracy to be closer to +/-5% (ASTM D1941) once the approach conditions, flume's installation, and construction tolerances are considered.
Should the flume submerge, the actual discharge flow rate can vary widely from the indicated flow rate. If submergence is suspected, a universal flow equation is available to correct the flow rate.
The accuracy of a flume can be affected by settling. A correction for settling has been developed to correct the flow rate.
Flume Dimensions
Remember that Parshall Flumes aren't scale models - while the flumes are similar in layout, they do differ. Never use intermediate or untested sizes.
Free-Flow Equation
The free-flow equation for Parshall Flumes is:

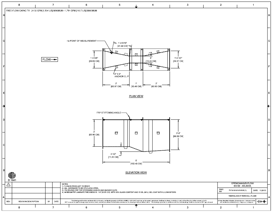
Values for the 6-inch Parshall Flume are:
| Minimum Head (ft) | 0.10 | Minimum Head (m) | 0.0305 |
| Minimum Flow Rate (cfs) | 0.0542 | Minimum Flow Rate (l/s) | 1.534 |
| Maximum Head (ft) | 1.50 | Maximum Head (m) | 0.4572 |
| Maximum Flow Rate (cfs) | 3.909 | Maximum Flow Rate (l/s) | 110.7 |
| Equation (cfs, ft) | 2.06*H1.58 | Equation (l/s, m) | 381.2*H1.58 |
Discharge Table
The free flow discharge table for the 6-inch Parshall is available for download.
The table provides:
- Top-down view of the flume with the Ha (primary point of measurement) shown
- Discharge equations in SI and Imperial units
- Flume's accuracy
- Submergence Transition (St)
- Source for the table's information
Materials
Openchannelflow's 6-inch Parshall Flume is available in several materials:
Of the materials, fiberglass is the most customizable.
Submergence Transition
The Submergence Transition (St) of a flume is that point at which the downstream conditions sufficiently reducer the discharge out of the flume that the indicated flow rate needs to be corrected.

The Submergence Transition for a 6-inch Parshall Flume occurs at 60%. At or above this point and the flume's discharge needs to be adjusted to reflect the actual flow rate.
