The Extra Large 60º V Trapezoidal Flume is useful - providing good low-end accuracy while still allowing connection to larger (up to 12-inch [30.48 cm]) pipes. The flat-bottomed design and v-shaped cross section mean that the flume passes solids well. The Extra Large 60º V Trapezoidal Flume is the most popular of the Trapezoidal Flume sizes.
Applications

The Extra Large 60º V Trapezoidal Flume is a popular flume that has been used in a range of applications:
- Watershed monitoring
- Edge-of-field runoff
- Dam seepage
- Ditch and furrow flows
- Stream gauging
- Industrial pretreatment monitoring
- Irrigation canals
- Spring discharge
Configurations

The Extra Large 60º V Trapezoidal Flume is available as:
- Plain flume
- Transitions into / out of the flume are formed by others
- End adapters
- To connect to inlet / outlet pipes and flanges
- Stage end adapters
- Curved transitions to allow installation in an existing manhole
- Metering manholes
- Factory integration into a fiberglass manhole
- Wing walls
- To span rectangular channels
Flume Accuracy
Trapezoidal Flumes have been rated as accurate to within +/-2% by Humpherys and Bondurant and +/-2-5% by the U.S. EPA. This accuracy is in line with other flume types. Under field conditions, Openchannelflow expects accuracy to be +/-5% with good approach and installation conditions.
Flume Dimensions
Unlike the Parshall Flume, Trapezoidal Flumes are not covered by an industry or national standard. Instead the flumes are described in various research and governmental publications.
Free-Flow Equation
The general free-flow equation for 60º V Trapezoidal Flumes is:

For the Extra Large 60º V Trapezoidal Flume the values are:
| Minimum Head (ft) | 0.06 | Minimum Head (m) | 0.0183 |
| Minimum Flow Rate (cfs) | 0.0009 | Minimum Flow Rate (l/s) | 0.0255 |
| Maximum Head (ft) | 1.00 | Maximum Head (m) | 0.3048 |
| Maximum Flow Rate (cfs) | 1.548 | Maximum Flow Rate (l/s) | 43.84 |
| Equation (cfs, ft) | 1.55*H2.63 | Equation (l/s, m) | 1001.3*H2.63 |
Discharge Table
The flow table for the Extra Large 60º Trapezoidal Flume is available for download.
The table provides:
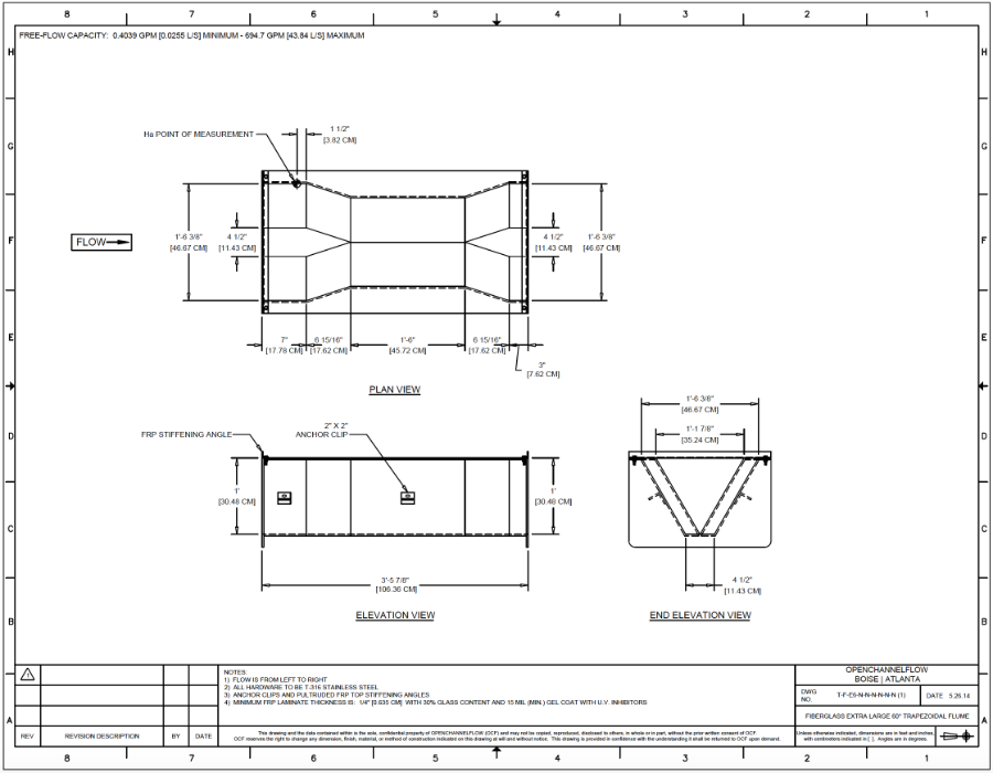
- Plan view showing the point of measurement (Ha)
- Discharge equations for a variety of units
- Flume accuracy
- Submergence Transition (St)
- Source of the table
Materials

Openchannelflow's offers the Extra Large 60º V Trapezoidal Flume in three different materials:
- Fiberglass (FRP)
- Light weight and lowest cost
- Galvanized steel
- Easily repaired and abrasion resistant
- Stainless steel
- Corrosion and abrasion resistant
Of these materials, fiberglass is the most easily customized.
Submergence Transition
When downstream conditions are such that the flow out of a flume is restricted, that flume is said to be submerged.
For a Trapezoidal Flume the primary point of measurement (Ha) is in the first section of the flume - before the flume contracts. The secondary point of measurement (Hb) is in the last section of the flume - after the flume has expanded.
Unlike the Parshall Flume whose floor changes elevation, the Trapezoidal Flume has a flat floor, making zero elevation the same for both points of measurement.

As downstream conditions restrict the flow out of the flume, the indicated flow and actual flow rates begin to diverge (the indicated flow rate being higher). A point is reached where the indicated flow rate needs to be corrected to bring it into line with the actual flow out of the flume. This Submergence Transition (St) occurs at 75-85% for Trapezoidal Flumes.

