The Large 60º V Trapezoidal flume is one of the original Trapezoidal flumed developed. The flume has good low-end resolution, while the v-shaped cross section allows for larger flow rates to be measured with reasonable head. Solids passage is good with the flume having a flat floor.
Applications

The Large 60º V Trapezoidal flume is versatile and can be used in a number of different applications:
- Watershed monitoring
- Edge-of-field monitoring
- Seepage monitoring
- Ditch and furrow flows
- Small surface water gauging
- Industrial pretreatment monitoring
- Furrows, ditches, small canals
- Spring discharge
Configurations
The Large 60º V Trapezoidal flume is available in several different configurations:
- Plain flume
- Transitions into / out of the flume are formed in the field
- End adapters
- Allowing connection to inlet / outlet pipes and flanges
- Stage end adapters
- Curved transitions to allow installation in an existing concrete manhole
- Metering manholes
- Factory integration into a fiberglass manhole
- Wing walls
- To span rectangular channels
Flume Accuracy
Trapezoidal flumes are rated by the U.S. EPA as accurate to within +/-2-5% (+/-2% by Humpherys and Bondurant).
This accuracy is in line with other flume types. In the field, Openchannelflow expects accuracy to be +/-5% with good approach and installation conditions.
Flume Dimensions
Trapezoidal flumes have been described in research publications - and not national publications like the Parshall flume - so no national or organizational standards exist.
Free-Flow Equation
The general free-flow equation for 60º V Trapezoidal flumes is as follow:

For the Large Trapezoidal flume the values are:
| Minimum Head (ft) | 0.015 | Minimum Head (m) | 0.0457 |
| Minimum Flow Rate (cfs) | 0.0116 | Minimum Flow Rate (l/s) | 0.3287 |
| Maximum Head (ft) | 0.50 | Maximum Head (m) | 0.1524 |
| Maximum Flow Rate (cfs) | 0.2592 | Maximum Flow Rate (l/s) | 7.341 |
| Equation (cfs, ft) | 1.55*H2.58 | Equation (l/s, m) | 941.2*H2.58 |
Discharge Table
The Large 60º Trapezoidal flume is available for download.
The table provides:
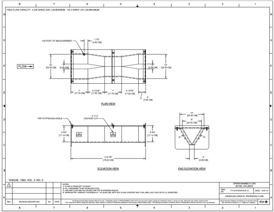
- Plan view showing the point of measurement (Ha)
- Discharge equations for a variety of units
- Flume accuracy
- Submergence Transition (St)
- Source of the table
Materials

Openchannelflow's offers Large 60º Trapezoidal flumes in:
- Fiberglass (FRP)
- Light weight
- Galvanized steel
- Low cost
- Stainless steel
- Corrosion resistance
Fiberglass construction allows the greatest customization.
Submergence Transition
A flume is said to be submerged when the downstream conditions are such that the flow out of a flume is restricted - the indicated flow is greater than the actual flow out of the flume.
For a Trapezoidal flume the primary point of measurement (Ha) is in the first section of the flume - where the walls are parallel and before the flume contracts. The secondary point of measurement (Hb) is in the last section of the flume - again, where the walls are parallel after the flume has expanded.
The Trapezoidal flume has a flat floor, making zero elevation the same for both points of measurement - unlike the Parshall flume.

As downstream conditions restrict the flow out of the flume, the indicated flow and actual flow rates begin to diverge (the indicated flow rate being higher).
At some point the difference between these two flow rates is such that the flow rate needs to be corrected. This point is termed the Submergence Transition (St) and for Trapezoidal flumes it occurs at 75-85%.
