As Parshall Flumes get larger they become more restricted in their uses. The 72-inch Parshall Flume is primarily used to measure flows at treatment plants, water rights, and surface waters. Due to its size, the 72-inch Parshall Flume usually ships in two pieces.
Applications
The 72-inch Parshall Flume is primarily used to measure the flow of water in:
- Mine dewatering applications
- Surface waters
- Rivers and streams
- Catchments
- Watersheds
- Water rights
- Canals
- Wastewater treatment plants
Configurations
Openchannelflow offers the 72-inch Parshall Flume in two different configurations:
- Plain
- Requiring field formed transitions
- Wing Walls
- Inlet or outlet walls to span rectangular channels
Regardless of which configuration is selected, the 72-inch Parshall Flume usually ships in two-pieces for ease of handling.
Flume Accuracy
Field conditions should see a Parshall Flume accurate to within +/-5% (ASTM D1941) with proper upstream flows, good installation, and a flume that is in dimension.
Over time a flume may settle or submerge. If this happens, corrections have been developed for both conditions.
Flume Dimensions
While similar in layout, Parshall Flumes are not scale models of each other. The flumes differ in section lengths and convergence / divergence angles.
Free-Flow Equation
The general, free flow equation for a Parshall Flume is:

For the 72-inch Parshall:
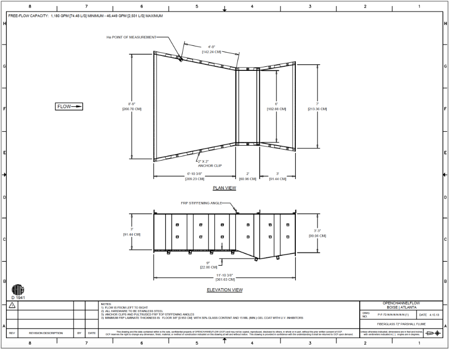
| Minimum Head (ft) | 0.20 | Minimum Head (m) | 0.0610 |
| Minimum Flow Rate (cfs) | 2.630 | Minimum Flow Rate (l/s) | 74.48 |
| Maximum Head (ft) | 2.50 | Maximum Head (m) | 0.7620 |
| Maximum Flow Rate (cfs) | 103.5 | Maximum Flow Rate (l/s) | 2931 |
| Equation (cfs, ft) | 24*H1.595 | Equation (l/s, m) | 4521*H1.595 |
Discharge Table
A flow table is available for download for the 72-inch Parshall Flume.
The table provides:
- Plan view of the flume
- Several different discharge equations
- Flume accuracy (per ASTM D1941)
- Submergence transition (St)
- ASTM standard from which the table is derived
Materials
Openchannelflow offers the 72-inch Parshall Flume in three different materials:
- Fiberglass (FRP)
- Lightweight and customizable
- Galvanized steel
- Economical
- Stainless steel
- Greatest resistance to abrasion and corrosion
Submergence Transition
Submergence in a flume occurs when the downstream conditions are such that they restrict the flow out of the flume. A point is reached, as submergence increases, where the difference between the actual and indicated flow rates is large enough that a correction has to be made. This point is termed the submergence transition (St).

The submergence transition (St) for the 72-inch Parshall Flume is 70%. At a submergence of 70% (or above) and the indicated discharge needs to be corrected to reflect the actual discharge.
