The primary uses of the 96-inch Parshall Flume are to either measure surface waters (watersheds / catchments / water rights) or sewage flows at wastewater treatment plants.
Like the other large Parshalls, the 96-inch Parshall Flume ships in two pieces for field assembly.
Applications
The 96-inch Parshall Flume is used to measure the flow of water in:
- Surface waters
- Rivers and streams
- Catchments
- Watersheds
- Water rights
- Canals
- Wastewater treatment plants
Configurations
The 96-inch Parshall Flume is available in two different configurations:
- Plain
- Where field transitions are formed
- Wing Walls
- Where wing walls are provided to span a rectangular channel
Where wing walls are provided, they ship detached for field installation to minimize the chance of damage during shipment.
Flume Accuracy
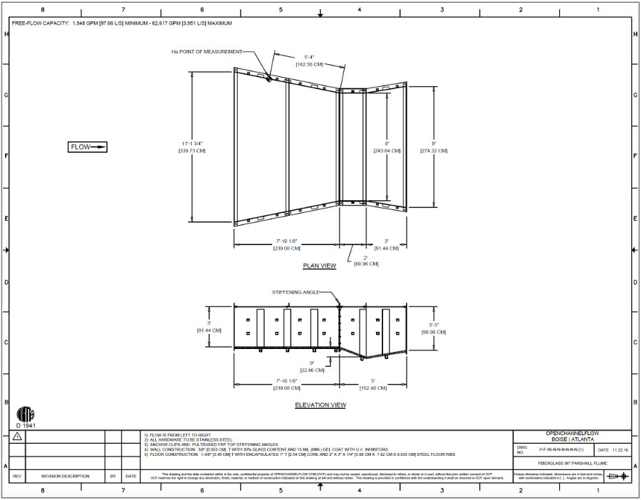
A Parshall Flume should be accurate to within +/-5% (ASTM D1941) in the field with proper upstream flows, good installation, and a flume that is in dimension.
While corrections are available for settlement or submergence, care should be taken during the installation to ensure that neither occur.
Flume Dimensions
While similar in layout, large Parshall Flumes are not scale models of each other. The throat and exit geometry are identical, however, varying only in width for 12-inch to 96-inch sizes.
Free-Flow Equation
The Parshall Flume standard free flow equation:

For the 96-inch Parshall:
| Minimum Head (ft) | 0.25 | Minimum Head (m) | 0.0610 |
| Minimum Flow Rate (cfs) | 3.449 | Minimum Flow Rate (l/s) | 97.66 |
| Maximum Head (ft) | 2.50 | Maximum Head (m) | 0.7620 |
| Maximum Flow Rate (cfs) | 139.5 | Maximum Flow Rate (l/s) | 3,951 |
| Equation (cfs, ft) | 32*H1.607 | Equation (l/s, m) | 6,115*H1.607 |
Discharge Table
The flow table for the 96-inch Parshall Flume is available for download.
On the table, there is:
- Plan view of the flume showing the point of measurement
- Discharge equations
- Flume accuracy
- Submergence transition (St)
- Source from which the table is derived
Materials
Openchannelflow offers the 96-inch Parshall Flume in two different materials to suit varying customer needs:
- Fiberglass (FRP)
- Lightweight & customizable
- Galvanized steel
- Economical
Submergence Transition
Submergence when the downstream conditions are such that they restrict the flow out of a flume. As submergence increases a point is reached where the indicated flow rate overstates flow enough (the actual flow rate being restricted - and lower) that a correction has to be made.
The point at which this occurs is termed the submergence transition (St).

For larger Parshall Flumes like the 96-inch, the submergence transition (St) is 70%. At or above this ratio and the submerged flow equation needs to be applied to determine the actual flow rate.
